Зимняя горка Норильск

В наличии: Есть

112500 руб.
134 900,00 руб.
Есть скидки!!!
Доставка: бесплатно!
Сборка: бесплатно!
Востребованность у покупателей:
  • 50

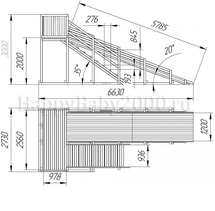
Высота ГОРКИ: 3,00 м.
Длина ГОРКИ: 6,70 м.
Ширина ГОРКИ: 2,80 м.

Высота спуска: 2,00 м.
Длина спуска: 5,70 м.
Ширина спуска: 1,20 м.

Необходимая площадь с зонами безопасности: 5,00 х 20,00 м. 

Материал:

  • силовые детали - из клееного бруса 90х90мм.
  • ограждения, пол и т.д. - из доски толщиной 40 и 20мм.
  • вес - 710 кг.

Разрешённые теги: <b><i><br> Ваш вопрос:


Каталог

Поиск товара